Назначение
Вентилятор УДАЛ-ПРП с прямоугольным корпусом предназначен для перемещения образующегося при пожаре дыма с температурой до 400 °С в течение 120 минут или до 600 °С в течение 120 минут.
Особенности
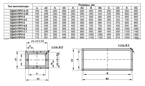
Пристенный вентилятор УДАЛ-ПРП оснащается радиальными колесами повышенной энергетической эффективности (с вращающимся диффузором). Рабочие колеса устанавливаются непосредственно на вал электродвигателя, выполнены с назад загнутыми лопатками сварными из стали и покрыты полимерным покрытием. Все корпусные детали вентилятора выполнены из оцинкованной стали без повреждения цинкового покрытия и усиливающих каркасов. Радиальный вентиляторы УДАЛ-ПРП выпускаются с горизонтальной и вертикальной ориентацией корпуса для крепления к стене или горизонтальной площадке, при этом конструктив опорных элементов различается. В зависимости от ориентации корпуса и комплектации вентилятора систем дымоудаления узлами применяются 6 компоновочных схем. (уточняйте детали по телефону или почте)
Вентиляторы УДАЛ-ПРП приспособлены для постоянной эксплуатации в условиях умеренного (У) климата 2-й или 1-ой категории размещения.
При установке в обслуживаемом помещении применяется только горизонтальная ориентация корпуса вентилятора. В этом случае двигатель укрывается теплоизолированной капсулой, вентилируемой наружным воздухом через стенку здания. Когда вентилятор крепится к стене возможен забор перемещаемой среды через входную коробку (схема К1), непосредственно через впускной патрубок вентилятора без воздуховода (схема К2). Когда вентилятор крепится к горизонтальной площадке (схема К3) к впускному патрубку подсоединяется воздуховод. Опция – козырек с откидывающейся заслонкой для установки на выходе потока из проема стены.
При установке снаружи здания и горизонтальной ориентации корпуса вентилятор крепится к стене, забор перемещаемой среды из обслуживаемого помещения осуществляется через проем в стене с помощью входной коробки. При расположении двигателя относительно корпуса снизу, он применяется без капсулы (схема К4). При расположении двигателя сверху корпуса он оснащается капсулой (схема К5), при этом входной патрубок капсулы обеспечивает забор воздуха за пределами горизонтальной проекции корпуса вентилятора. Опция – козырек с откидывающейся заслонкой для установки на выходном патрубке вентилятора.
При установке снаружи здания и вертикальной ориентации корпуса вентилятор крепится к горизонтальной площадке, забор перемещаемой среды из обслуживаемого помещения осуществляется через проем в стене через впускной патрубок вентилятора непосредственно или с помощью воздуховода (схема К6). Опции – козырек для двигателя и выпускной двускатный обратный клапан.
При установке в защищенном от пожара помещении применяется только вертикальная ориентация корпуса вентилятора и двигатель капсулой не оснащается (схема К6). По заказу возможно изготовление корпуса вентилятора с теплоизоляцией его стенок снаружи (схема К6и). Входная коробка вентилятора может быть повёрнута на 90° в обе стороны относительно своего положения, показанного на рисунке для горизонтальной ориентации корпуса.
Маркировка
Опции, устанавливаемые на вентилятор УДАЛ-ПРП в различных компоновочных схемах, обозначаются следующим образом:
ПРП-КОВ-N – клапан обратный, устанавливаемый на выходе, для установки с выбросом вертикально вверх;
ПРП-КД-N – козырёк двигателя для защиты от осадков при установке снаружи здания по схеме К6;
ПРП-КК-N – козырёк-клапан, устанавливаемый на выходе из вентилятора или на проёме;
ПРП-ПКВ-N – патрубок круглый для подсоединения ко входу в вентилятор круглых воздуховодов с фланцем,
где N – номер вентилятора.
Вентиляторы приспособлены для постоянной эксплуатации в условиях умеренного (У) климата 2-й или 1-ой категории размещения по ГОСТ 15150-69. Вентиляторы предназначены для перемещения образующегося при пожаре дыма с температурой до 400 ОС в течение 120 минут или до 600 ОС в течение 120 минут согласно СП 7.13130.2013. Массы вентиляторов даны для комплектации с капсулой и входной коробкой.
Выпускают вентиляторы следующих исполнений:
- общепромышленные;
- взрывозащищенные (В). Уровень взрывозащиты оборудования Gb, Gc или Db, Dc, предназначенный для перемещения газопаровоздушных взрывоопасных смесей IIА, IIВ и IIС, или IIIА, IIIВ категорий.
Мы предлагаем противопожарные воздуховоды ведущих Российских производителей. Приобрести товар «Пристенный радиальный вентилятор УДАЛ-ПРП», артикул 196358 Вы можете on-line на нашем сайте добавив товар в корзину или позвонив по телефону 8-800-550-48-39 , а также в пункте выдачи в г. Симферополь, ул. Базовая, дом 6
| Температура перемещаемых дымовых газов, град | до 400 в течение 120 минут или до 600 в течение 120 минут |
| Область применения | Системы дымоудаления |
| Функция | Перемещение дымовых газов |
